We understand architecture
as an aesthetical practice
that drives a potentially
transforming force

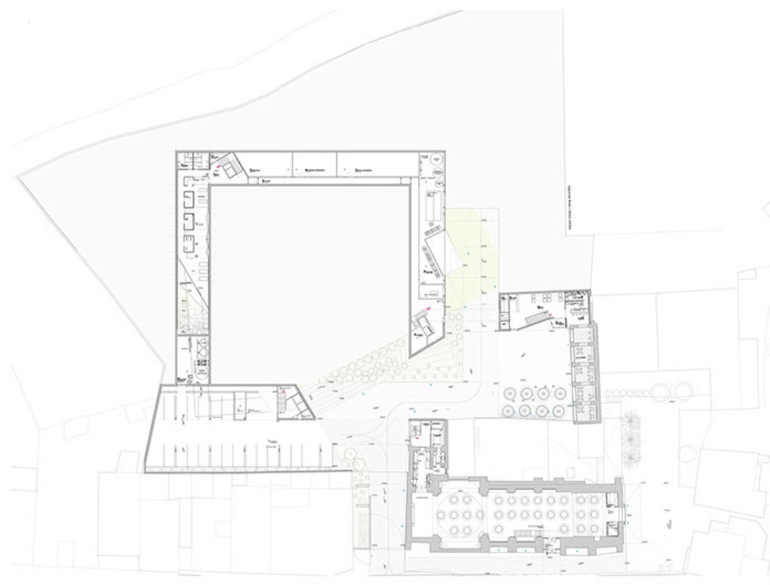
San Jeronimo Convent Hospederia

2021
  • Location: Herrera del Duque, Extremadura
  • Client: Extremadura Governent
  • Date: 2009-
  • Principal Architect: Cristina Acha, Miguel Zaball 
  • Structural Architect: Jon Bilbao, Josu Minteguia
  • Services Engineer: Unai Martínez de la Hidalga

 

Utilizamos cookies propias y de terceros para mejorar tu accesibilidad, personalizar y analizar tu navegación. Al continuar navegando consideramos que aceptas su instalación. Puedes cambiar la configuración u obtener más información en nuestra cookies policy