We understand architecture
as an aesthetical practice
that drives a potentially
transforming force

Frame-House

2021
  • Location: Bilbao, Bizkaia
  • Client: Private
  • Date: 2021
  • Principal Architect: AZAB  Ane Arce, Iñigo Berasategui, Cristina Acha, Miguel Zaballa
  • Contractors: Alur S.L.
  • Photographs: Luis Díaz Díaz

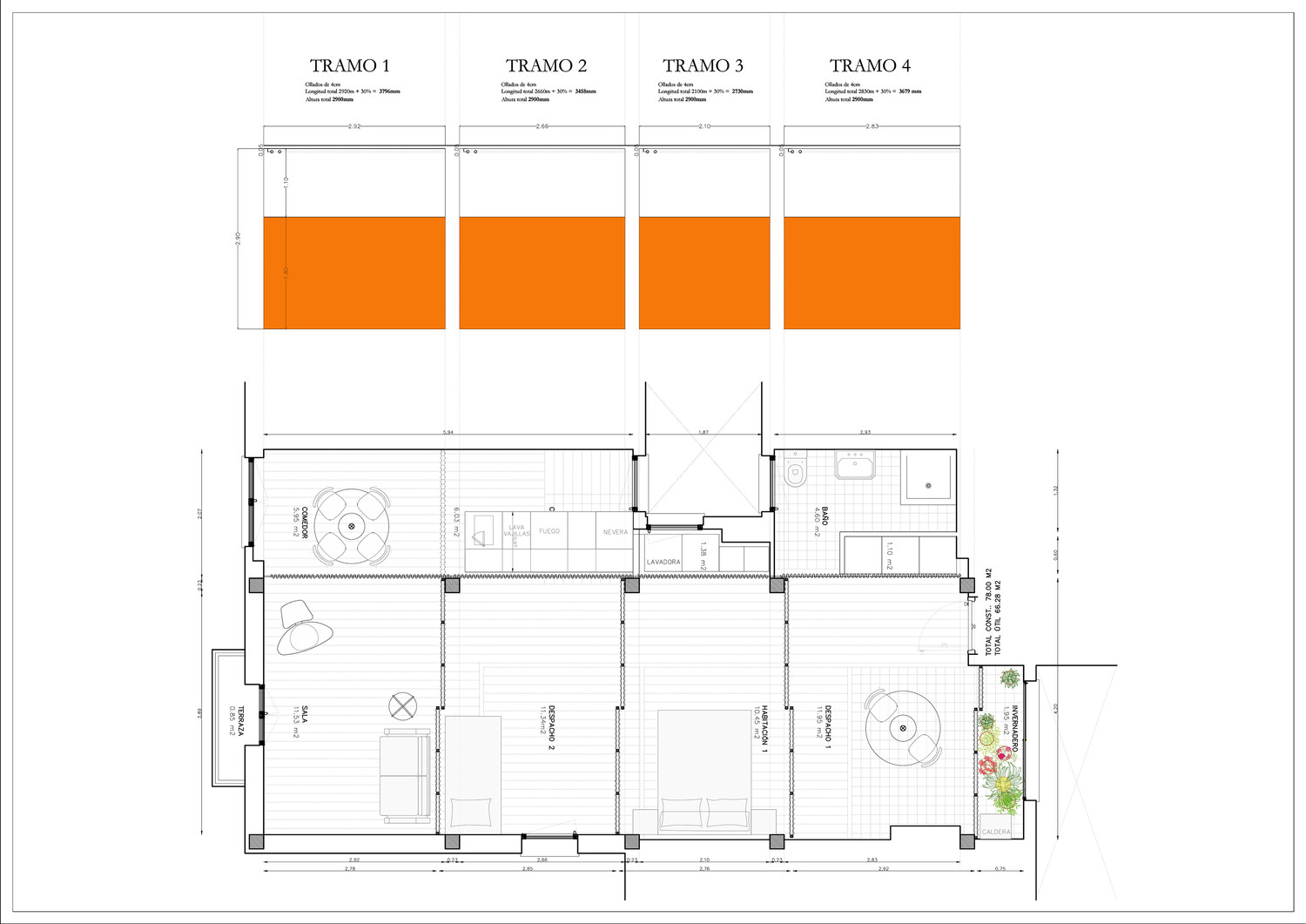
The reform of a small apartment in the unique Bilbao neighborhood of Olabeaga serves as a pretext to seek a revitalizing strategy that, with a minimal budget, radically transforms a conventional home.The intervention seeks to break away from the conventions that flood the real estate stock and that overcondition the use, especially of smaller homes. Excess compartmentalization, small rooms, poor lighting, and monofunctional rooms whose conditions are not suitable for any of the uses or functions assigned to it.

Mutability as a project engine, understanding flexibility as a potential act that allows the house to become a continent adaptable to the changing needs of the new owners: telework, leisure, rest, music, social gatherings or cooking classes.To do this a direct strategy, first eliminate everything overbuilt and then ... the minimum. The minimum not as an image of complex realities embalmed with pure lines, the minimum as that only ... the essential.

A clear and wide space, one that is one and there are several, connoted and mutable through a mobile system of sliding partitions, it is attached, separated or partially related, generating promiscuous and diffuse relationships. A space generous enough for each day a function.

A transformation towards a theatrical idea of ​​the everyday in which user-actionable mechanisms make up the home scene. Every day a function; each house a theater.

Utilizamos cookies propias y de terceros para mejorar tu accesibilidad, personalizar y analizar tu navegación. Al continuar navegando consideramos que aceptas su instalación. Puedes cambiar la configuración u obtener más información en nuestra cookies policy