We understand architecture
as an aesthetical practice
that drives a potentially
transforming force

Amara - Easo

2025
  • Location: Sestao, Bizkaia
  • Client: Basque Goverment
  • Date: 2025
  • Principal Architect: Cristina Acha, Miguel Zaballa
  •  

LANDSCAPE / GREEN STRUCTURE
The area occupies an interstitial position between the slope of the Arbaizenea forest and the river. The goal is to preserve the existing forest and expand the green area. The development incorporates the natural elements of its perimeter and integrates them into the planning. The intervention area is conceived as a predominantly green, soft, and permeable area.
The development functions as a green connection. In the north-south direction, it connects the Ensanche and Amara neighborhoods through a park. In the east-west direction, it brings the natural landscape closer to the urban fabric, facilitating access to natural areas and LANDSCAPE / GREEN STRUCTURE

The area occupies an interstitial position between the slope of the Arbaizenea forest and the river. The goal is to preserve the existing forest and expand the green area. The development incorporates the natural elements of its perimeter and integrates them into the planning. The intervention area is conceived as a predominantly green, soft, and permeable area. 

The development functions as a green connection. In the north-south direction, it connects the Ensanche and Amara neighborhoods through a park. In the east-west direction, it brings the natural landscape closer to the urban fabric, facilitating access to natural areas and preserving the city's protective ecosystem. the city's protective ecosystem.

URBAN STRUCTURE
A flexible planning scheme is proposed in which the permeability of the built fabric is consistent with the predominantly green character sought for the intervention.
Easo Square remains in its current area. The station building is proposed to be retained as a public facility. The proposed residential building structure is arranged linearly in the north-south development strip between the station and the northwest block of Sancho el Sabio Avenue (a) and in the extension of the area below the Arbaizenea slope (b).
Below-ground occupation is maintained in Easo Square, and parking is concentrated in (a). This facilitates the definition of permeable soil, a tree-lined green area for a large URBAN STRUCTURE

A flexible planning scheme is proposed in which the permeability of the built fabric is consistent with the predominantly green character sought for the intervention. Easo Square remains in its current area. The station building is proposed to be retained as a public facility. The proposed residential building structure is arranged linearly in the north-south development strip between the station and the northwest block of Sancho el Sabio Avenue (a) and in the extension of the area below the Arbaizenea slope (b). Below-ground occupation is maintained in Easo Square, and parking is concentrated in (a). This facilitates the definition of permeable soil, a tree-lined green area for a large area. 

Interference between the built footprint and the metro route is avoided.. Interference between the built footprint and the metro route is avoided.

LAYOUT
The proposed building layout is based on a 10x10m grid pattern. This grid unfolds continuously north-south, with concentric radii. It adapts naturally to the geometry and boundaries of the area.
All the proposed buildings are based on this grid. Although their layout may seem somewhat random at first glance, the layout responds to the following criteria:
_Preserve visual and physical permeability in an east-west direction, downstream from the forest to the river.
_Ensure sunlight and wide views for all new homes.
_Maintain open views along the existing street extensions (Avenida Sancho el Sabio, Paseo Errondo, Autonomía, Easo, and Prim streets).
A large part of the area is strongly influenced by the high elevation of the Arbaizenea slope, which casts shadow from the west, as well as by the blocks of Paseo de Errondo, which cast shadow from the east. The staggered layout of the building volume on the proposed grid ensures that all theLAYOUT

The proposed building layout is based on a 10x10m grid pattern. This grid unfolds continuously north-south, with concentric radii. It adapts naturally to the geometry and boundaries of the area. All the proposed buildings are based on this grid. Although their layout may seem somewhat random at first glance, the layout responds to the following criteria: _Preserve visual and physical permeability in an east-west direction, downstream from the forest to the river. _Ensure sunlight and wide views for all new homes. _Maintain open views along the existing street extensions (Avenida Sancho el Sabio, Paseo Errondo, Autonomía, Easo, and Prim streets). 

A large part of the area is strongly influenced by the high elevation of the Arbaizenea slope, which casts shadow from the west, as well as by the blocks of Paseo de Errondo, which cast shadow from the east. The staggered layout of the building volume on the proposed grid ensures that all the homes in the area receive good sunlight from their southern exposure.homes in the area receive good sunlight from their southern exposure.

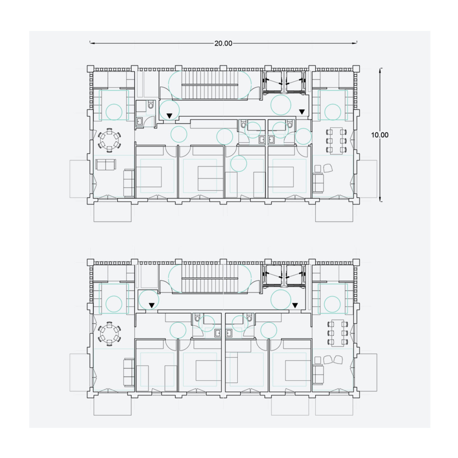
BUILDING VOLUMETRY / LAYOUT
411 homes are planned in 25 free-standing blocks supported by the grid layout. The blocks are sized based on the grid unit as single or double units, with ground floor +9 and +15 stories respectively.
The resulting volumetry, the staggered layout, and the separation between blocks ensure that all units have wide, straight views. The grid is permeable to sun, air, and views not only for itself but also for the buildings in the pre-existing grid at the perimeters.
The goal is to create an east-west opening that connects the area with the natural landscape elements. Above all, the north-south opening ensures that all homes enjoy guaranteed sunlight in this orientation throughout the year. Free from the blocking shadows cast by the planned new buildings. With alternative orientations also free from the blocking of the BUILDING VOLUMETRY / LAYOUT

411 homes are planned in 25 free-standing blocks supported by the grid layout. The blocks are sized based on the grid unit as single or double units, with ground floor +9 and +15 stories respectively. The resulting volumetry, the staggered layout, and the separation between blocks ensure that all units have wide, straight views. The grid is permeable to sun, air, and views not only for itself but also for the buildings in the pre-existing grid at the perimeters. 

The goal is to create an east-west opening that connects the area with the natural landscape elements. Above all, the north-south opening ensures that all homes enjoy guaranteed sunlight in this orientation throughout the year. Free from the blocking shadows cast by the planned new buildings. With alternative orientations also free from the blocking of the 10-story Amara blocks to the east and the Arbaizenea hillside to the west.-story Amara blocks to the east and the Arbaizenea hillside to the west.

ORIENTATIONS
All the homes have the same orientation. They all face south.
To the north are vertical cores and utility reserves. The homes have double or triple orientation. All have a main south-facing facade, providing unobstructed views and guaranteed sunlight.
Regardless of their position on the site, all the blocks are identical on their upper floors. Only the ground floors rotate based on each unit's relationship to the urban circulation and mobility network. There are minor variations depending on the presence or absence of a garage staircase, the ORIENTATIONS

All the homes have the same orientation. They all face south. To the north are vertical cores and utility reserves. The homes have double or triple orientation. All have a main south-facing facade, providing unobstructed views and guaranteed sunlight. 

Regardless of their position on the site, all the blocks are identical on their upper floors. Only the ground floors rotate based on each unit's relationship to the urban circulation and mobility network. There are minor variations depending on the presence or absence of a garage staircase, the position of the entrance to the entrance hall, etc. of the entrance to the entrance hall, etc.

Utilizamos cookies propias y de terceros para mejorar tu accesibilidad, personalizar y analizar tu navegación. Al continuar navegando consideramos que aceptas su instalación. Puedes cambiar la configuración u obtener más información en nuestra cookies policy